PRET: 139.000 EUR + TVA 19%
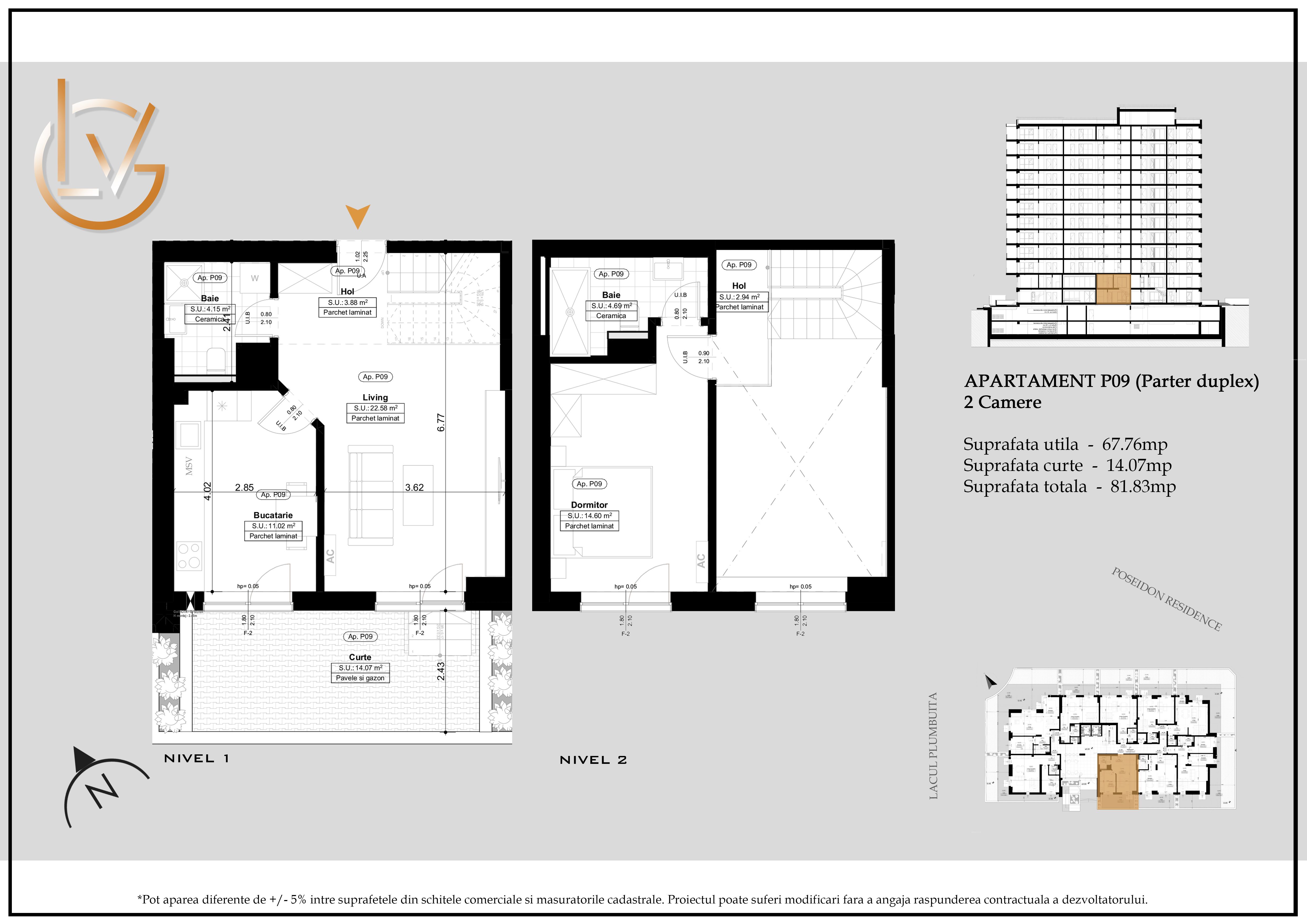
DUPLEX 2 CAMERE
DESCRIERE PROPRIETATE
Esti in cautare de ceva timp si nu ai gasit ce iti doresti? Duplexul P09 este foarte probabil raspunsul tau. Este un apartament cu 2 camere, distribuit pe 2 etaje, cu scara interioara, foarte luminos datorita pozitionarii sale pe sud. La parter te vei bucura de zona de zi (living), o bucatarie generoasa inchisa de 11 mp, o baie si terasa de 13,6 mp. Iar la etaj, te vei bucura de intimitatea dormitorului si a celei de-a doua bai. Apartamentul tip duplex este situat intr-o constructie noua, receptionata la finalul anului 2024, avand 80 de apartamente, cu design contemporan, pe structura de beton armat si compartimentari cu BCA, cu finisaje si dotari moderne. Apartamentul este bine compartimentat si se vinde finisat, gata de mutare! Dotari si finisaje: Incalzire in pardoseala - sistem Rehau Placi ceramice in bai si bucatarie - Marazzi Parchet - Alfa Wood Obiecte sanitare - Ideal Standard Ferestre tripan - Salamander, profil de 73 mm, sticla 4 season LowE Aer conditionat - 2 unitati incluse Habitat Fatada termoizolata cu vata minerala de 15 cm Programeaza o vizionare! COMISIONUL ESTE 0!
DETALII PROPRIETATE
- LOCALITATE: BUCURESTI
- JUDET: BUCURESTI
- ZONA: PETRICANI
- TIP TRANZACTIE: VANZARE
- TIP APARTAMENT: 2 CAMERE
- COMPARTIMENTARE: DECOMANDAT
- PRET (EURO): 139.000
- VALOARE TVA: 19%
- SUPRAFATA UTILA (MP): 64
- ETAJ: Parter
- LOC DE PARCARE: NU
- GARAJ: NU
- DORMITOARE: 1
- BUCATARII: 1
- BAI: 2
- TERASA: 1
- STATUS CONSTRUCTIE: FINALIZAT
- AN FINALIZARE: 2024
- NR ETAJE CLADIRE: 10
OPTIUNI PROPRIETATE
- SISTEM INCALZIRE: Centrală imobil, Incalzire prin pardoseala
- PERETI: Faianta, Vopsea lavabila
- PODELE: Gresie, Parchet
- MOBILAT: Nemobilat
- DOTARI: Aer conditionat, Scara interioara
- DOTARI IMOBIL: Interfon, Paza
- UTILITATI GENERALE: Apa, Canalizare, Curent
- AMENAJARE STRAZI: Iluminat stradal, Mijloace de transport in comun
- CONTORIZARE: Apometre, Contor caldura, Contor electric
LOCATIE PROPRIETATE SI CONTACT
